Gå til: Plantegninger | Fasade | Kontaktskjema
220 – FARO
ÅPEN OG LUFTIG
Med Faro får du en særpreget funkisbolig, med en herlig altan og integrert carport. Store vindusflater og en skrå himling skaper et åpent og luftig preg.
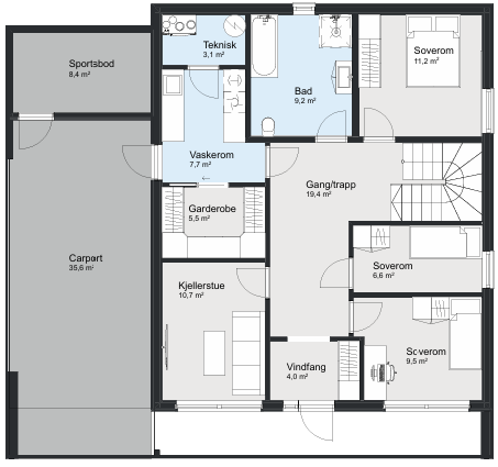
Huset har hele fem soverom, to bad, praktisk vaskerom, kjellerstue, integrert carport og sportsbod, og en luftig og åpen stue- og kjøkkenløsning, med direkte tilgang til den store altanen, perfekt for alt fra frokost i morgensola til lange sommerkvelder.
Faro er et godt valg for deg som ønsker en bolig med moderne uttrykk, mye plass og muligheter til å skape egne soner for både fellesskap og privatliv.
Klikk her for å lese vår artikkel om oppføring av kundetilpasset Faro.
TEKNISK DATA

Innenfor arealgrensen til Husbanken
ØNSKER DU MER INFORMASJON?
FYLL UT SKJEMAET, SÅ KONTAKTER VI DEG FOR EN HYGGELIG BOLIGPRAT
ARKITEKT
ALT KAN TILPASSES FOR Å IMØTEKOMME DERES ØNSKER OG BEHOV
Fordelene med å bygge et helt nytt hus, er at du kan få det akkurat slik som du vil. Trolig finner du en husmodell i vår katalog som kan passe, men kanskje ønsker du å tilpasse boligen etter egne ønsker og behov.
Vi vil gjøre vårt ytterste for at du skal bli fornøyd, og hjelper deg hele veien fra idé til ferdig bolig. Vi har fagkunnskap og gir gode råd for at du skal få bygget en bolig som passer deg helt perfekt.»







